ПН-ВС: 24 ЧАСА!
Москва, МО, ЦФО
8 (495) 540-55-35
Санкт-Петербург, Краснодар,
Екатеринбург, Россия
8 (800) 555-33-49
Важно: От типа грунта зависит выбор модели септика ТВЕРЬ.
К примеру, автономные станции ТВЕРЬ без принудительного выброса, с использованием насоса, можно устанавливать только в песчаный грунт с высоким коэффициентом фильтрации. К сожалению, песчаный грунт - большая редкость для Московской области.
Чаще всего при монтаже станции биологической очистки ТВЕРЬ нашим специалистам приходится сталкиваться с глиной или суглинком, - типами почв с низким коэффициентом фильтрации и высокой плотностью.
Если у вас есть сомнения по типу грунта, и по любым другим вопросам, - предлагаем воспользоваться бесплатным выездом нашего специалиста, для определения типа грунта и подбора нужной для Вас модели септика ТВЕРЬ.
Вызов специалиста возможен как по нашему телефону: +7 (495) 540-55-35, так и через форму вызова на нашем сайте.
БЕСПЛАТНЫЙ ВЫЕЗД ИНЖЕНЕРА НА ВАШ УЧАСТОК!
2 812 000 руб
Итоговая стоимость:
2 812 000 руб.
*Оплата производится только по факту выполненных работ
Шеф-монтаж — пуско-наладочные работы, которые осуществляются нашим выездным специалистом.
Входит в цену шеф—монтажа канализации Свирь-20УН:
Более подробно об услуге Шеф-монтаж септика Свирь-20УН вы можете узнать у наших специалистов, позвонив по нашему телефону: +7 (495) 540-55-35
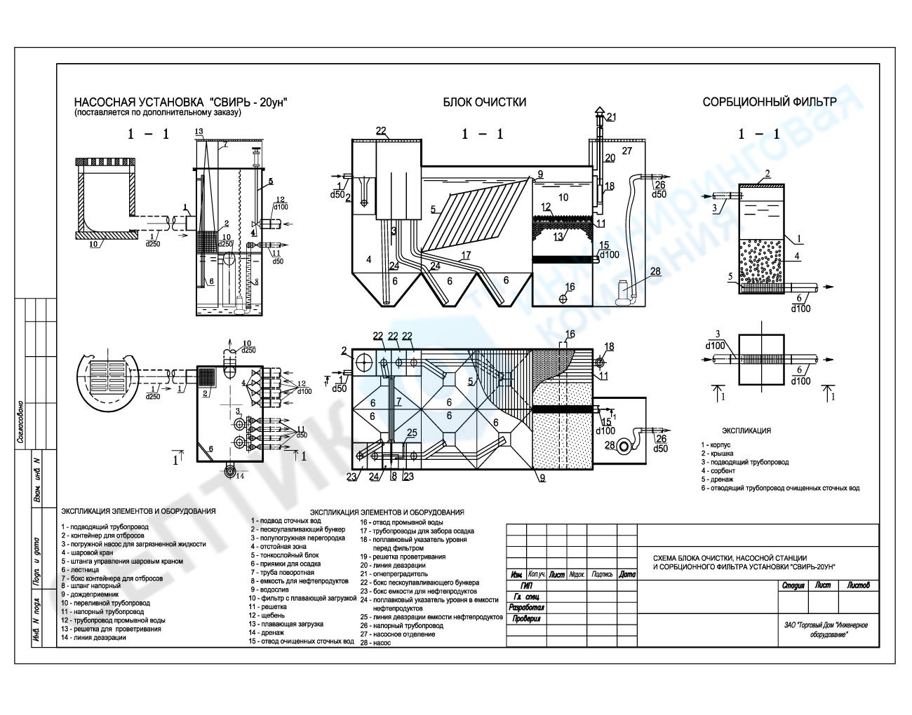
| Производительность, л/секунду | 20 |
|---|---|
| Площадь водосбора (приблизительная),га | 2 |
| Кол-во блоков очистки | 4 |
| Сорбц.фильтр | 4 |
| НС после блока очистки | + |
| НС загрязненных стоков | по доп. заказу |
| Гарантия производителя | 3 года |
| Гарантия на пуско-наладочные работы (шеф монтаж) | 1 год |
| Гарантия при монтаже "под ключ" | 1 год |
| Вес, кг | 16300 |
|---|---|
| Габаритные размеры блока очистки, м | 4,0 х 1,8 х 2,5 |
| Габаритные размеры сорбционного фильтра, м | 1,2 х 1,2 х 1,5 |
Свирь-20УН цена — 2671400 рублей. Купить Свирь-20УН
Входит в цену шеф—монтажа канализации Свирь-20УН:
Более подробно об услуге Шеф-монтаж канализации Свирь-20УН вы можете узнать у наших специалистов, позвонив по нашему телефону: +7 (495) 540-55-35

*Акция действует до 15 декабря