ПН-ВС: 24 ЧАСА!
Москва, МО, ЦФО
8 (495) 540-55-35
Санкт-Петербург, Краснодар,
Екатеринбург, Россия
8 (800) 555-33-49
Цена: 237 915 руб
Цена: 264 265 руб
Цена: 250 665 руб
Важно: От типа грунта зависит выбор модели септика КолоВеси.
К примеру, автономные станции КолоВеси без принудительного выброса, с использованием насоса, можно устанавливать только в песчаный грунт с высоким коэффициентом фильтрации. К сожалению, песчаный грунт - большая редкость для Московской области.
Чаще всего при монтаже станции биологической очистки КолоВеси нашим специалистам приходится сталкиваться с глиной или суглинком, - типами почв с низким коэффициентом фильтрации и высокой плотностью.
Если у вас есть сомнения по типу грунта, и по любым другим вопросам, - предлагаем воспользоваться бесплатным выездом нашего специалиста, для определения типа грунта и подбора нужной для Вас модели септика КолоВеси.
Вызов специалиста возможен как по нашему телефону: +7 (495) 540-55-35, так и через форму вызова на нашем сайте.
БЕСПЛАТНЫЙ ВЫЕЗД ИНЖЕНЕРА НА ВАШ УЧАСТОК!
476 900 руб
Итоговая стоимость:
476 900 руб.
*Оплата производится только по факту выполненных работ
Шеф монтаж — пуско-наладочные работы, которые осуществляются нашим выездным специалистом.
Входит в цену шеф монтажа канализации Коло Веси 15 миди пр:
Более подробно об услуге Шеф монтаж септика Коло Веси 15 миди пр вы можете узнать у наших специалистов, позвонив по нашему телефону: +7 (495) 540-55-35
| Кол-во человек | 12-17 |
|---|---|
| Производительность, л/сутки | 3000 |
| Залповый сброс, л | 600 |
| Объем переработки м3/сутки | 3 |
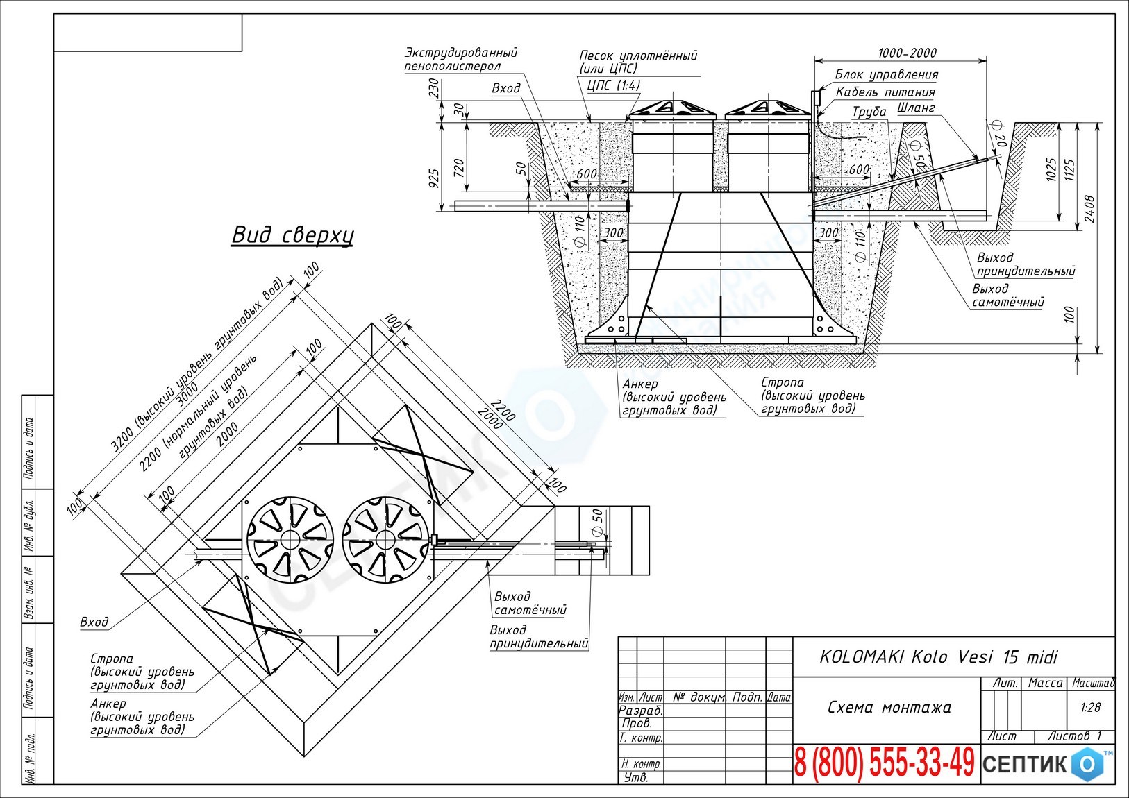
| Глубина золожения подводной трубы, мм | 900 |
| Гарантия производителя | 3 года |
| Гарантия на пуско-наладочные работы (шеф монтаж) | 1 год |
| Гарантия при монтаже "под ключ" | 1 год |
| Вес, кг | 222 |
|---|---|
| Длина, м | 2 |
| Ширина, м | 2 |
| Высота,м | 2.48 |
Коло Веси 15 миди пр. Купить Коло Веси 15 миди пр
Септик Коло Веси 15 миди пр станция глубокой биологической очистки стоков. Предназначена как для постоянного, так и временного проживания в доме и даче. Перерабатывает поступающие стоки от 12-17 условных пользователей.
| Стандартный монтаж | 70935 |
|---|
Входит в цену стандартного монтажа канализации Коло Веси 15 миди пр:
Более подробно об услуге Стандартный монтаж канализации Коло Веси 15 миди пр вы можете узнать у наших специалистов, позвонив по нашему телефону: +7 (495) 540-55-35
| Бортовая машина | 5000 |
|---|
